Digitizing, converting, Fabrication drawings
Digitizing, converting, and modifying machining drawings represent pivotal stages in the realm of manufacturing and engineering. In the modern era, traditional paper-based machining drawings are being transformed into digital formats, leading to enhanced efficiency, precision, and collaboration in the manufacturing process.
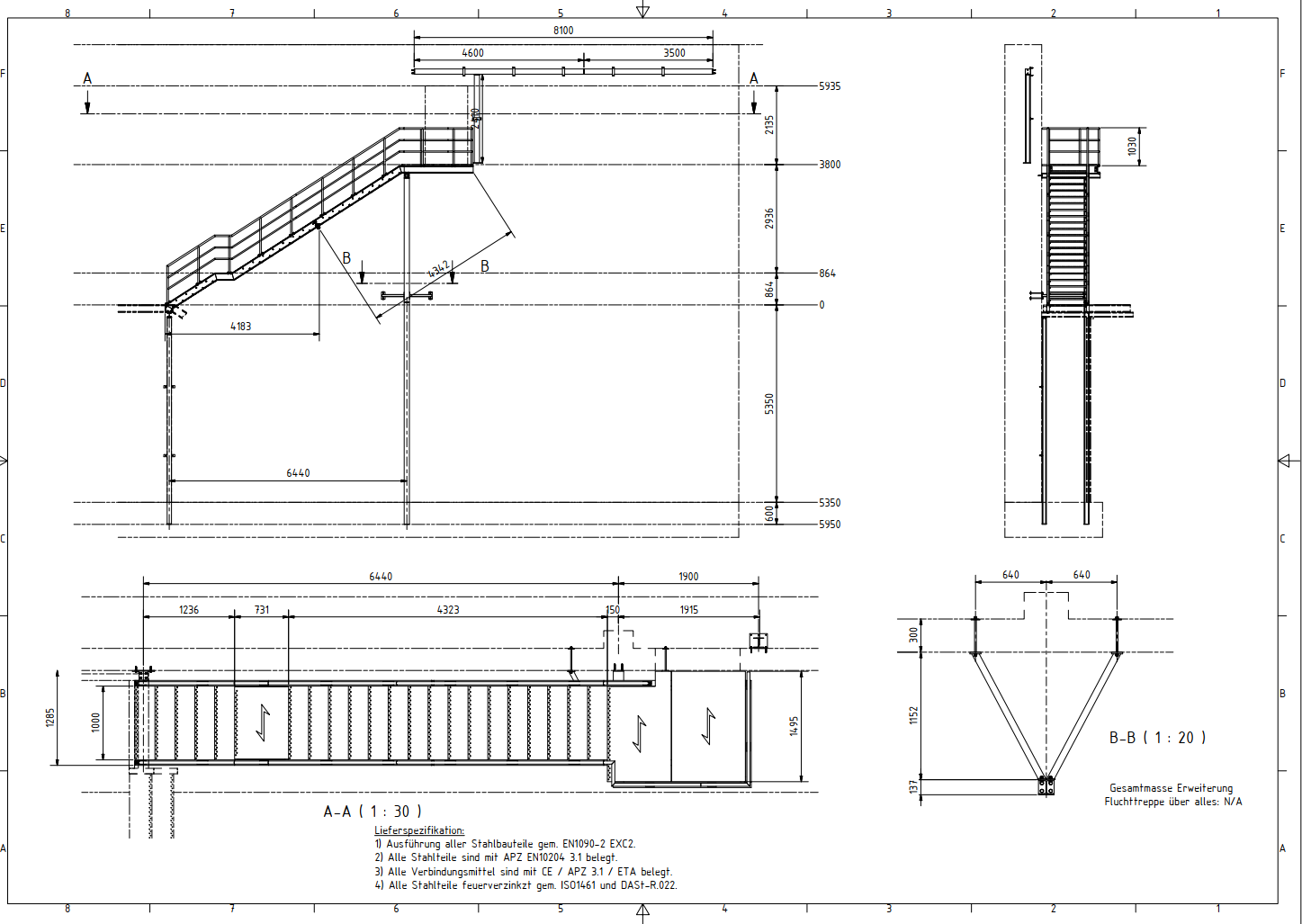
Stair
.png)
.png)
.png)
